新築一戸建
鳥が丘新築戸建て
6,699万円(税込)
- 所在地
- 横浜市戸塚区鳥が丘
- 交通
- 横浜市営地下鉄ブルーライン「踊場」駅 徒歩14分
- POINT
- 
・整備された街並みが広がる鳥が丘地区 
 ・国道1号線まで車で6分とアクセス良好です
 
OUTLINE
 物件概要
| 所在地 | 横浜市戸塚区鳥が丘 | 
|---|---|
| 交通1 | 横浜市営地下鉄ブルーライン「踊場」駅 徒歩14分 | 
| 交通2 | JR東海道本線「戸塚」駅 バス7分「道祖神前」停歩2分 | 
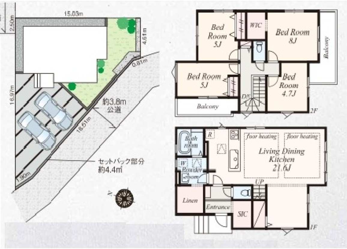
| 価格 | 6,699万円(税込) | 物件名称 | 鳥が丘新築戸建て | 物件番号 | 133 | 物件種別 | 新築一戸建 | 販売棟数 | 全1棟 今回販売1棟 | 土地面積 | 181.05㎡(54.76坪) | セットバック面積 | 4.36㎡別 | 建物面積 | 105.05㎡(31.77坪) | 間取 | 4LDK | 建物構造 | 木造 2階建 | 完成 | 2025年12月完成予定 | 接道状況 | 南西 3.80M道路に21.27M接道 北東 6.50M道路に2.50M接道 | 都市計画 | 市街化区域 | 地目 | 宅地 | 用途地域 | 第一種低層住専 | 建ぺい率 | 40% | 容積率 | 60% | 建築確認番号 | 第25UDI1W建05087号 | 現況 | 建築中 | 駐車場 | あり | 取引態様 | 売主 | 小学区 | 横浜市立鳥が丘小学校 ※1 | 中学区 | 横浜市立領家中学校 ※1 | 
CONTACT
お問い合わせ
- メールでのお問い合わせ
- お電話でのお問い合わせ
- 


